Contenido principal

Comenzó la obra en los Barrios El Esfuerzo y Scully

25/05/2022

 

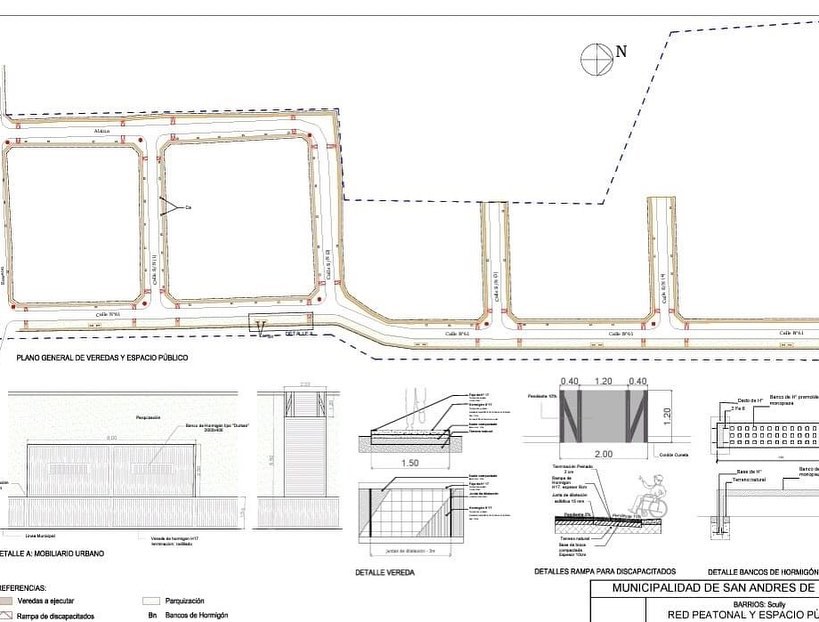
Se inició el entubamiento del zanjón y posterior hormigonado con cordón de la calle 61, desde Rawson hasta Scully y calles internas.

Además contará con conductos pluviales, sumideros, veredas, y espacio verde.

#NuevoSanAndresdeGiles


Imágenes: